Detalles de la Propiedad
Se venden departamentos en preventa torre Ever
Jalisco, Zapopan, zona real
Descripción:
Se venden Hermosos departamentos en preventa en la torre Ever ubicada en la zona Real! una de las mejores zonas de Zapopan con mayor plusvalia en el mercado, cuenta con todo tipo de servicios al estar en la zona Real como escuelas, hospitales, centros de entretenimiento y comercios a pocos minutos; todo esto sin perder la seguridad y privacidad que permiten llevar una vida tranquila y confortable.

Quedan unicamente 21 departamentos disponibles de 34 que son en las torres, los departamentos son desde los 57 m2 hasta los 79 m2 y los precios varian desde $2572000 hasta los $3750000 pesos, dependiendo el modelo de departamento.

Existen descuentos en los departamento según la forma de pago:

Financiamiento A

Enganche: 20%  parcialidades: 0  Entrega: 80%  sin descuento.

Financiamiento B

Enganche: 30%   parcialidades: 30%  Entrega:10%  descuento: 3%

Financiamiento C

Enganche: 50%   parcialidades: 40%  Entrega:10%  descuento: 8%

Financiamiento Contado

Enganche: 90%   parcialidades: 0%  Entrega:10%  descuento:13%


Existen 11 tipos de departamentos que son los Siguientes:

TIPO 1A

MIDE 65.72 M2 cuenta con una sola recamara con vestidor y con balcon

TIPO 1B

MIDE 64.32 M2 cuenta con una sola recamara con vestidor y con balcon pequeño

TIPO 2A

MIDE 57.41 M2 cuenta con una sola recamara con vestidor y SIN balcon pequeño (UN SOLO BAÑO)

TIPO 2B

MIDE 60.27 M2 cuenta con una sola recamara con vestidor y con balcon (UN SOLO BAÑO)

TIPO 2C

MIDE 60.27 M2 cuenta con una sola recamara con vestidor y con balcon (UN SOLO BAÑO)

TIPO 2D

MIDE 59.95 M2 cuenta con una sola recamara con vestidor y con balcon (UN SOLO BAÑO)

(SEGUNDA TORRE)

TIPO 3A

MIDE 76.57 M2 cuenta con una sola recamara con vestidor, Un estudio y con balcón pequeño

TIPO 3B

MIDE 79.41 M2 cuenta con 2 recamaras con vestidor en recamara principal y  balcon

TIPO 3C

MIDE 79.41 M2 cuenta con una sola recamara con vestidor, Un estudio y con balcón

TIPO 4A

MIDE 57.51 M2 cuenta con una sola recamara con vestidor

TIPO 4B

MIDE 60.04 M2 cuenta con una sola recamara con vestidor y con balcon

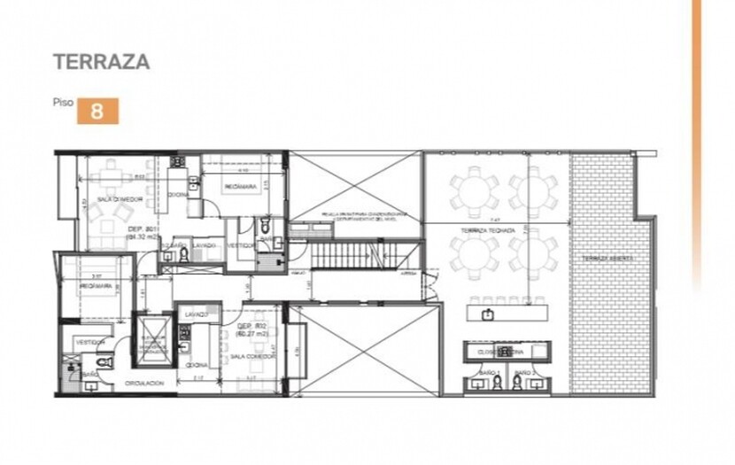
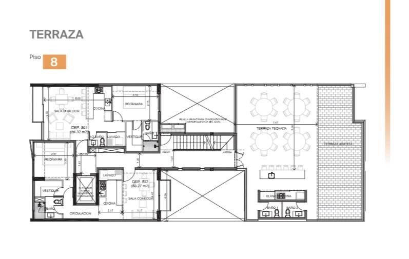
Amenidades:

ELEVADOR DE AUTOS
SALON DE USOS MULTIPLES CON COCINA
TERRAZA ABIERTA
TERRAZA TECHADA
SALON DE JUEGOS
GIMNACIO
BODEGAS


PREGUNTA POR LA LISTA DE PRECIOS!









Datos Generales:
Ubicación:
Jalisco, Zapopan
Construcción:
57.51 m2
Superficie:
57.51 m2
Tipo de Propiedad:
departamentos
Colonia o Fracc.:
zona real
Recamaras:
1
Baños
1
Estacionamientos:
1
¿Te interesó este Inmueble publicado y quieres más informacion?
Propiedades que te pueden interesar
dirección
Plaza Eximoda Local 6 Zona B, Av. Vallarta Poniente #3233, Guadalajara, Jalisco